KUTA

13/08/2025 - 150m² - Pusignan - Stage KAIA - Particulier

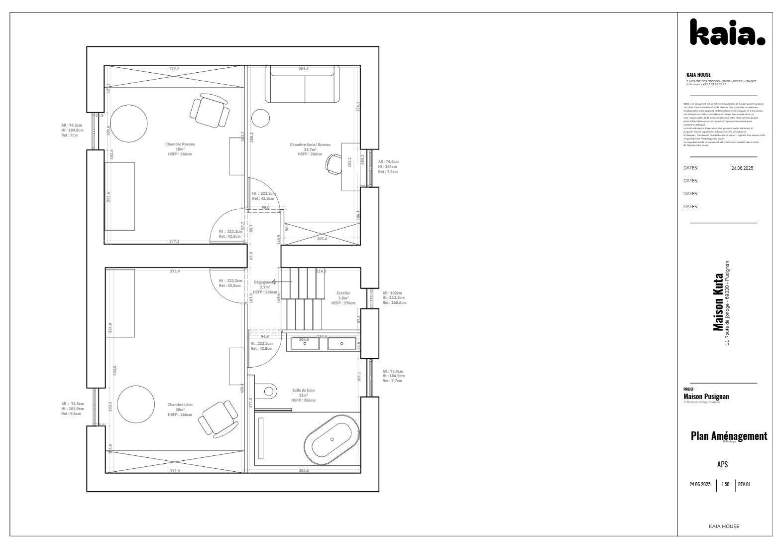
Destiné à une famille, ce projet visait à créer un intérieur chaleureux et fonctionnel, capable de répondre aux besoins de chacun tout en valorisant la lumière et les volumes. L’agence m’a confié la réalisation complète : relevé métrés, rendez-vous clients et fournisseurs, conception et démarrage du chantier. J’ai également assuré un suivi régulier sur place, participant à la gestion des imprévus et au bon déroulement de la réalisation. L’idée était de créer un intérieur chaleureux et fonctionnel, capable de s’adapter aux besoins de tous les membres de la maison. Le défi consistait à allier esthétique et praticité, en jouant sur les volumes et la circulation de la lumière pour donner une impression d’ouverture et d’harmonie. Le parti-pris a été de choisir des matières naturelles et des aménagements fluides, afin d’offrir à la famille un cadre de vie élégant, moderne et durable, où chaque espace raconte une histoire.


Précédent
Précédent

TOI&TOITS

Suivant
Suivant

PLUME